Jacksonville Beach Condo by the Sea

Jacksonville Beach, FL.

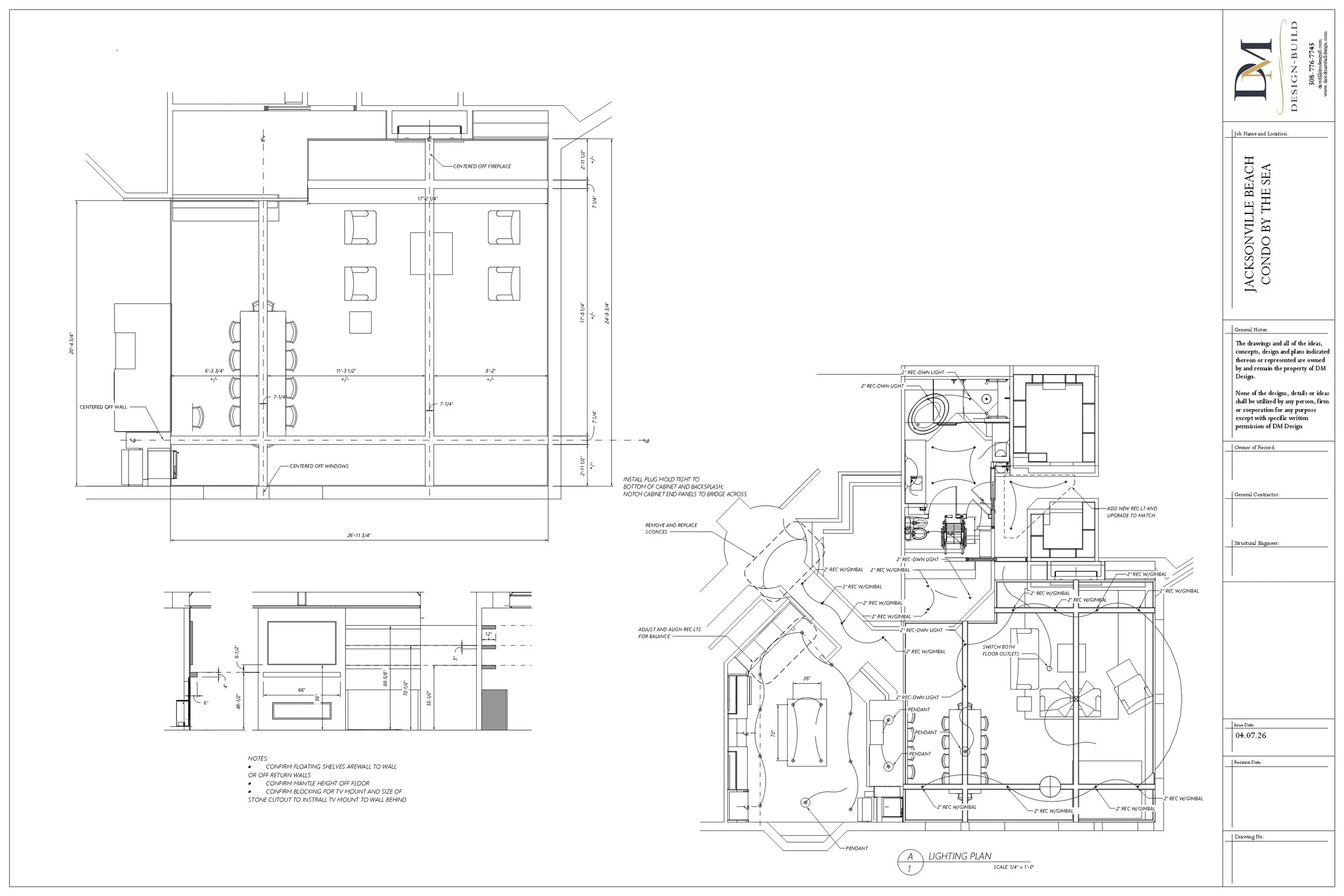
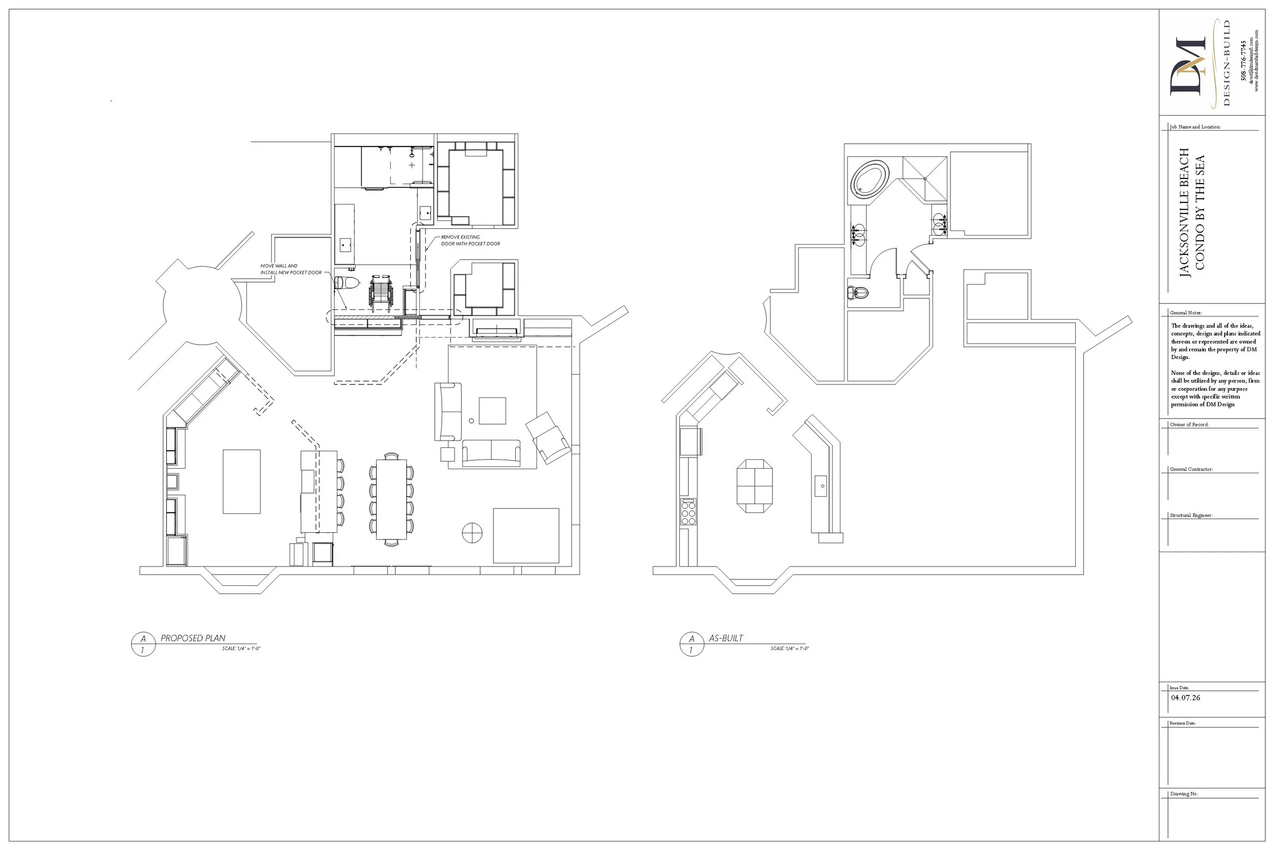
A full design-build renovation of an oceanfront condo shaped by structural constraints and functional requirements. The project integrates lighting, mechanical systems, and architectural elements into a cohesive design, while incorporating a fully accessible bathroom with a custom hoist system for assisted mobility.

Project Information

Location
Jacksonville Beach, Florida

Project Type
Oceanfront Condo Renovation

Residence Type
High-Rise Condominium

Role
Design-Build
Architectural Design
Project Management
Lighting & Ceiling Design Coordination

Project Scope
Full Interior Renovation

Key Constraints
Fixed plumbing locations
Limited structural modification
Existing HVAC and sprinkler integration

Special Considerations
Fully accessible bathroom design
Integrated cross-shaped hoist system
Assisted mobility and caregiver functionality

Previous
Previous

St. Augustine Waterfront Residence

Next
Next

Ponte Vedra Golf Retreat Renovation