Ponte Vedra Golf Retreat Renovation
Ponte Vedra, FL.
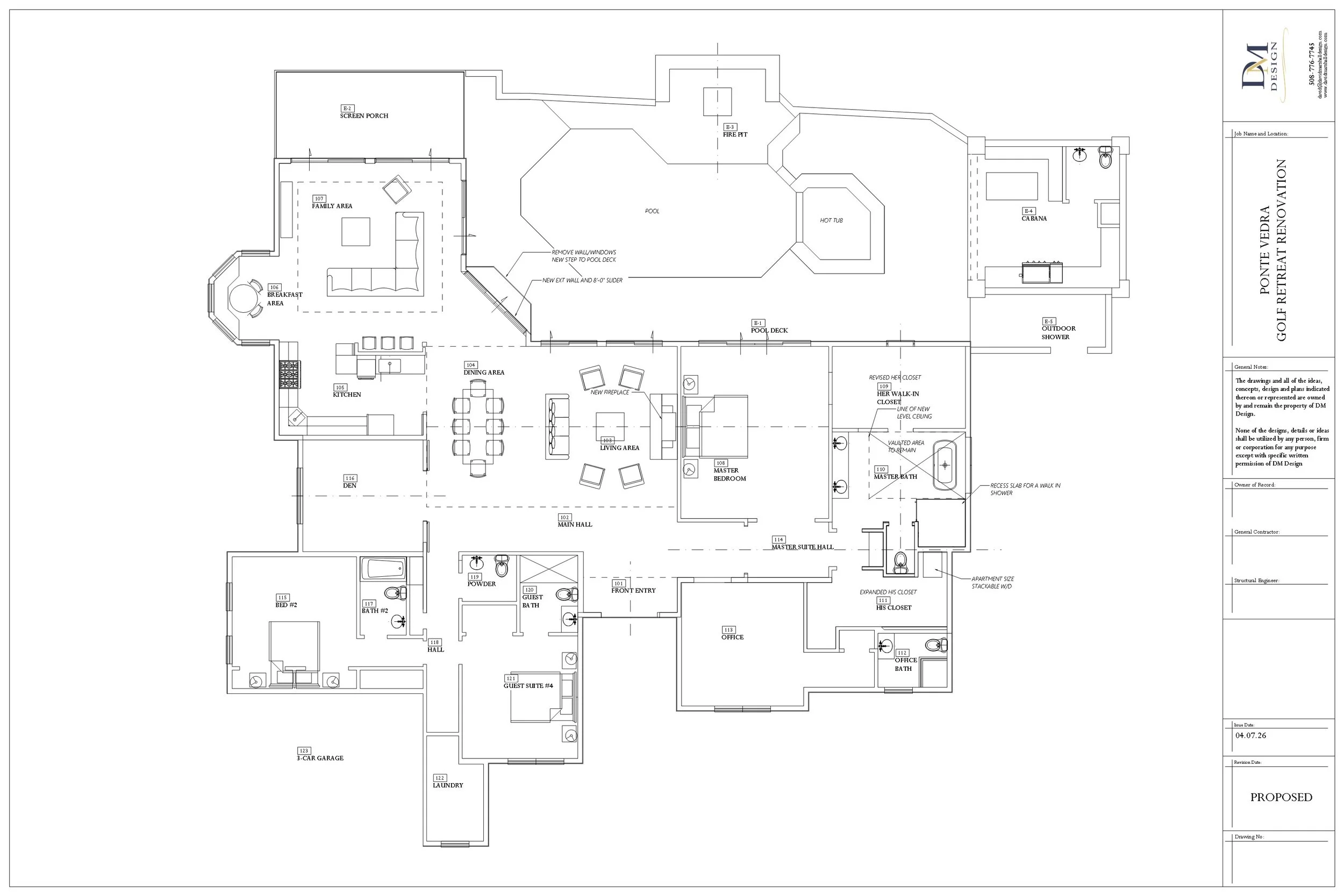
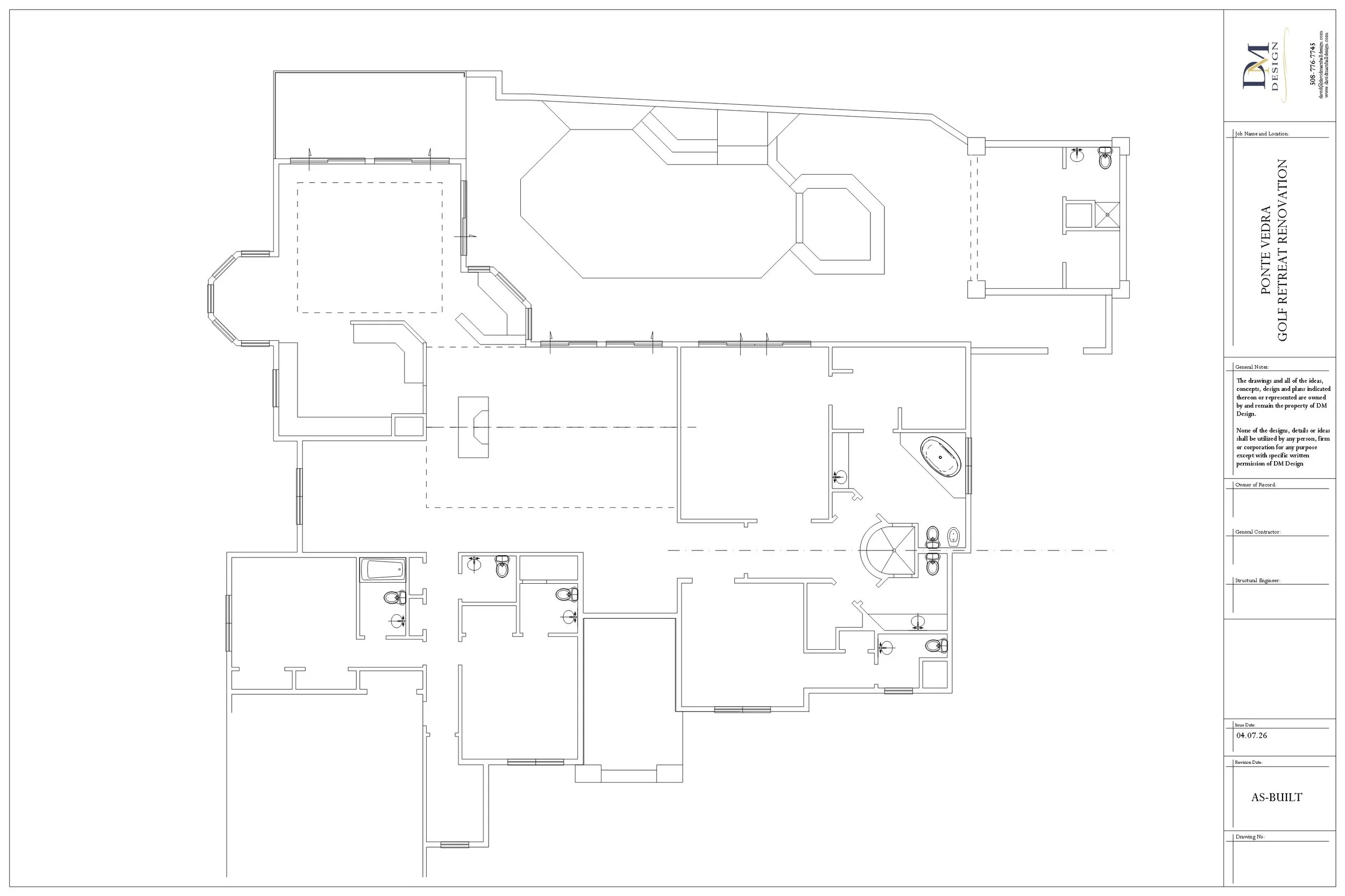
This Ponte Vedra Golf Club residence was reimagined through a full interior renovation focused on openness, light, and livability. The existing layout, while generous in scale, felt compartmentalized and dated.
The design-build approach allowed for a complete transformation—removing barriers between kitchen, dining, and living spaces while introducing a refined coastal aesthetic. Custom millwork, reconfigured ceiling details, and a cohesive material palette elevate the home into a modern retreat suited for both everyday living and entertaining.
The renovation extends beyond the interior, revitalizing the pool and outdoor living areas to create a seamless connection between inside and out.
Project Information
Location: Ponte Vedra Beach, Florida
Project Type: Full Interior Renovation / Design-Build
Scope:
Kitchen & Living Room Reconfiguration
Master Suite Renovation
Bathroom Transformations
Flooring Throughout
Custom Millwork & Cabinetry
Lighting & Ceiling Redesign
Outdoor Living & Pool Renovation
Design + Construction: David Marshall Design
Interior Design Collaboration: R Studio